611 Tisch(e) in Bürogemeinschaft

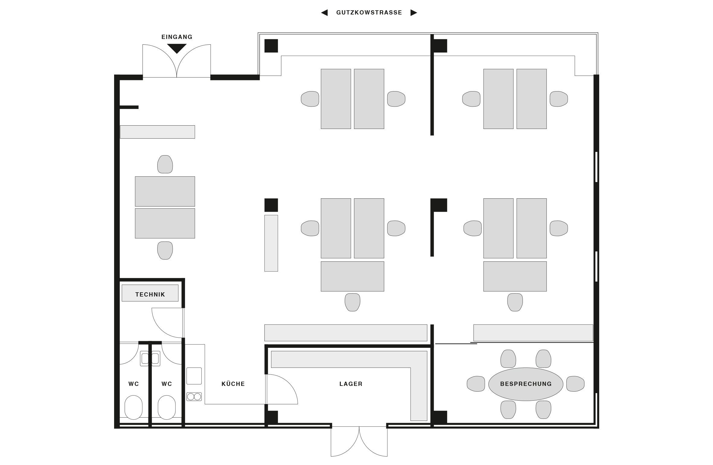
Das loftartige Büro (180 qm) im Erdgeschoss mit großen Fensterflächen und eigenem Eingang ist mit Eiermann-Schreibtische möbliert und besitzt einen Besprechungsraum, eine offene Küche, Keller, zwei getrennte Toiletten, Abstellraum, W-Lan und sw-Drucker.  
Momentan anwesend: Grafik-Designer*in, Illustrator, Texter, Autorin, PR-Beraterin, Landschaftsarchitektin.

Mietpreis (inkl. NK, W-Lan, Reinigung): 345,- €. Das Büro befindet sich in Sachsenhausen in direkter Nähe zum Schweizer Platz und der Brückenstraße, gegenüber einer Grünanlage.

Kontakt: bueroplatz@buerobares.de
https://www.buerobares.de/buero/

Typ Tisch
Fläche 180 m²
Mietpreis 345 €
Stadteil Sachsenhausen-Nord
ÖPNV U-Bahn, S-Bahn
Verfügbar seit 01.09.2024