344 Atelier/Bürofläche in renoviertem Giebeldach

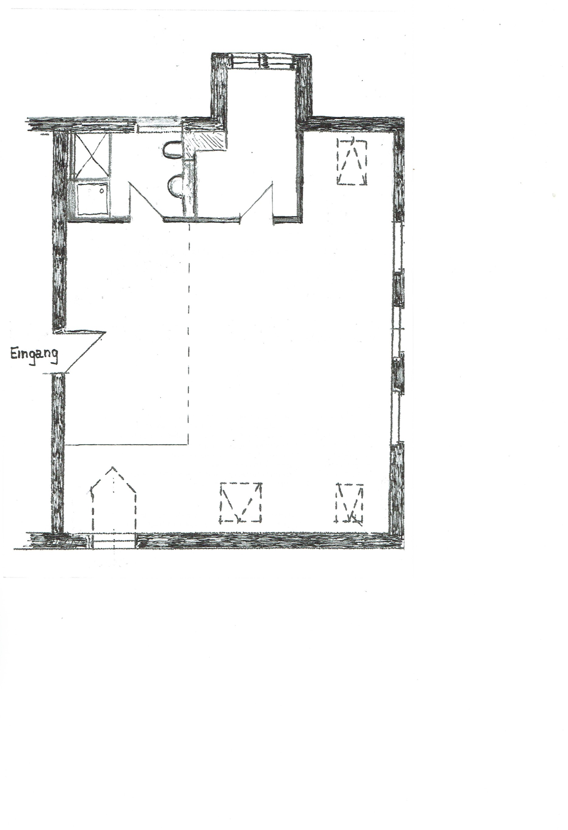
Ab sofort ist in Frankfurt-Hausen eine ca. 87qm große Atelier- und Bürofläche im 2.OG frei, die 2019 renoviert wurde. Die schöne Giebelkonstruktion wurde erhalten und eine Zwischenebene direkt unter dem Dach eignet sich hervorragend als Lagerfläche oder auch Besprechungsraum.
Vorhanden ist ein modernes Bad mit integrierter Dusche sowie eine Teeküche mit Waschbecken und Schränken. Die Raumaufteilung ist variabel gestaltbar, das Einziehen von Wänden in Trockenbauweise ist möglich.

Im alten Hausener Stadtkern gelegen, sind es nur 5 Minuten zu Fuß zur U-Bahn-Station "Große Nelkenstraße" (Linie U6). Einkaufsmöglichkeiten sowie Restaurants sind ebenfalls in wenigen Minuten zu Fuß erreichbar.

Die Mietkosten belaufen sich auf 850€ zzgl. 120€ Nebenkosten.

Bei Interesse bitte melden bei: dietrich.niederhut (ett) gmail.com oder 0171-2850014

Typ Räume
Fläche 85 m²
Mietpreis 970 €
Stadteil Hausen
ÖPNV U6
Verfügbar seit 05.07.2021