627 Zwei Arbeitsplätze in Bornheim

In Bornheim stehen zwei helle Arbeitsplätze (je 360 € inkl. aller Nebenkosten und Internet) zur Verfügung.

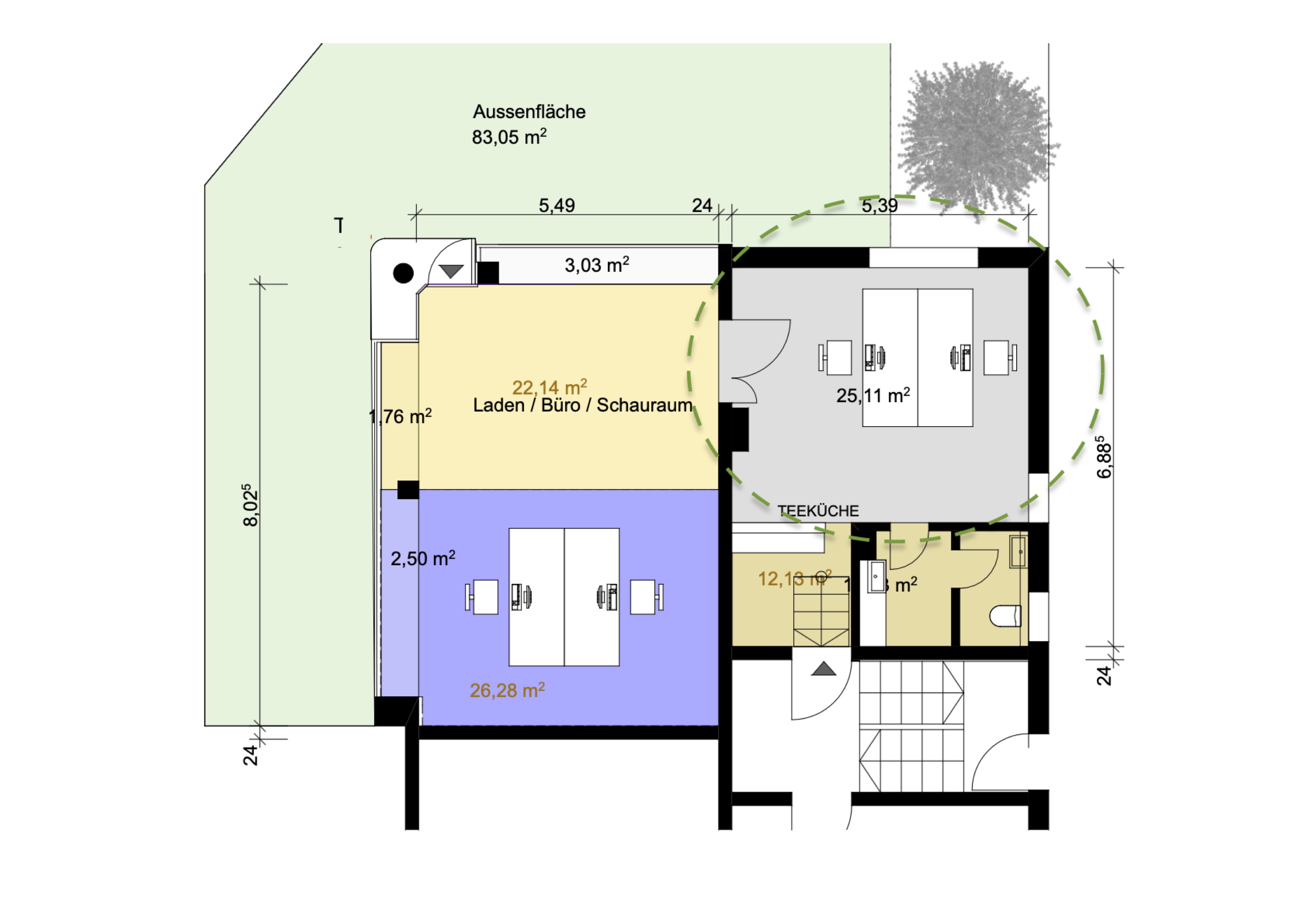
Jeder Arbeitsplatz befindet sich im im Grundriss markierten Raum mit Fußbodenheizung und eigenem Schaufenster – ideal für Verkauf, Ausstellung oder kreative Arbeit.

Alternativ kann der gesamte Raum (ca. 25 m²) auch allein genutzt werden – für 480 € inkl. aller Nebenkosten und Internet.

Bei Interesse oder Fragen einfach anrufen
Kontakt holz@robartos.com
+49(0)15904978289

Typ Raum
Fläche 40 m²
Mietpreis 360 €
Stadteil Bornheim
ÖPNV U4
Verfügbar seit 20.10.2025