785 Hinterhaus Niddapark

Mitmieter für Hinterhaus in Bockenheim am Niddapark gesucht.

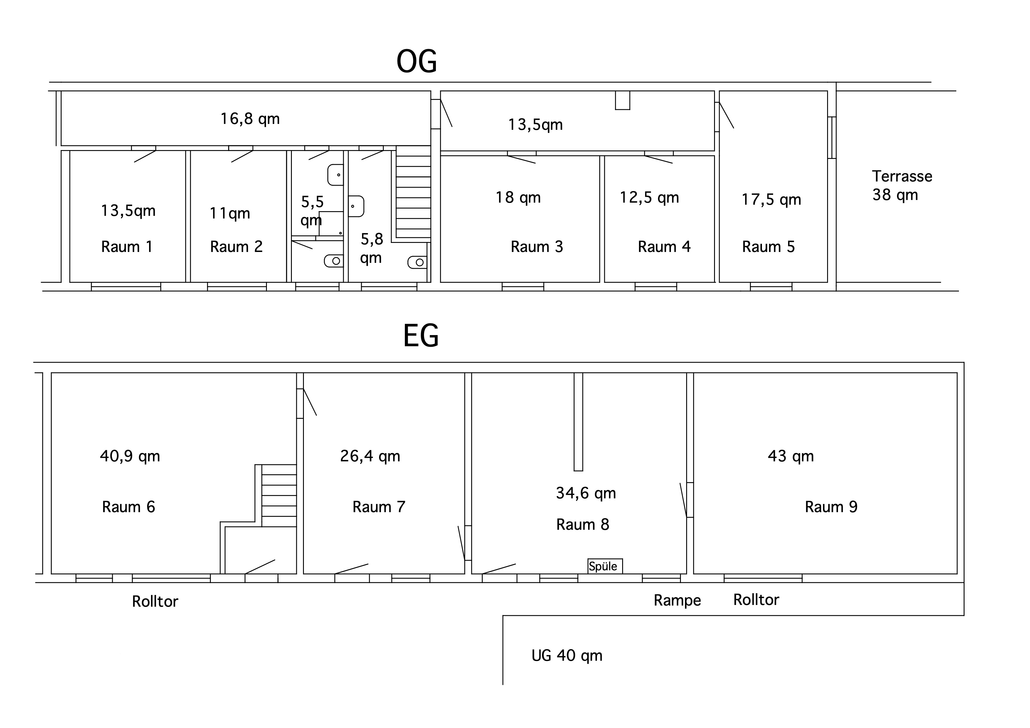
256 qm Gewerbeimmobilie auf 2 Etagen mit separat zugänglichen Produktions-, Werkstatt und Lagerräumen im EG und einer Büroetage im 1. OG mit 4 Büroräumen, Küche, Bad, Dachterasse und Blick Richtung Niddapark.

Ideal z.B. für bestehende Bürogemeinschaften oder Kollektive, die z.B. an einer Kombination aus Büro (1. OG) und Produktion (EG) interessiert sind.

In Raum 6 + 9 im EG befindet sich eine Metallwerkstatt mit separaten Zugängen, die gerne bleiben möchte und, sofern sich passende Mitmieter finden, ggf. auch die Hauptmieterschaft für das gesamte Gebäude übernehmen würde.

Die Nutzbarmachung und Renovierung insb. des 1. OGs könnte bei Abschluss eines Mietvertrags über 5 Jahre über das "Frankfurter Programm zur Förderung des Umbaus leerstehender Räume" mit 150 Eur/qm bezuschusst werden.

Eckaten:

  • ca. 256 qm (EG 128 qm, 1. OG 128 qm)

  • davon im EG Raum 6 + 9 von Werkstatt genutzt, die vor Ort bleiben möchte

  • ca. 175 qm verbleibende Fläche im EG und 1. OG

  • Mietpreis: 10 Eur/warm

  • Stellplätze und Unterstand im Außenbereich


Bei Interesse bitte Kontaktaufnahme über: raum@radar-frankfurt.de mit kurzer Beschreibung der eigenen Tätigkeit und geplanten Nutzung.

Typ Räume
Fläche 175 m²
Mietpreis 1750 €
Stadteil Bockenheim
ÖPNV U6, U7
Verfügbar seit 26.03.2026