593 Drei20 - Etagen für Büro/Atelier-Gemeinschaften

In der Gutleutstr. 320 (Drei20) stehen 4 Etagen (1. - 4. OG.) mit jeweils ca. 230 qm für zunächst 7,50 Eur/qm (zzgl. NK und Mwst.) ab dem zweiten Jahr für 8,50 Eur/qm (zzgl. NK und Mwst.) für mindestens 5 Jahre zur Verfügung.

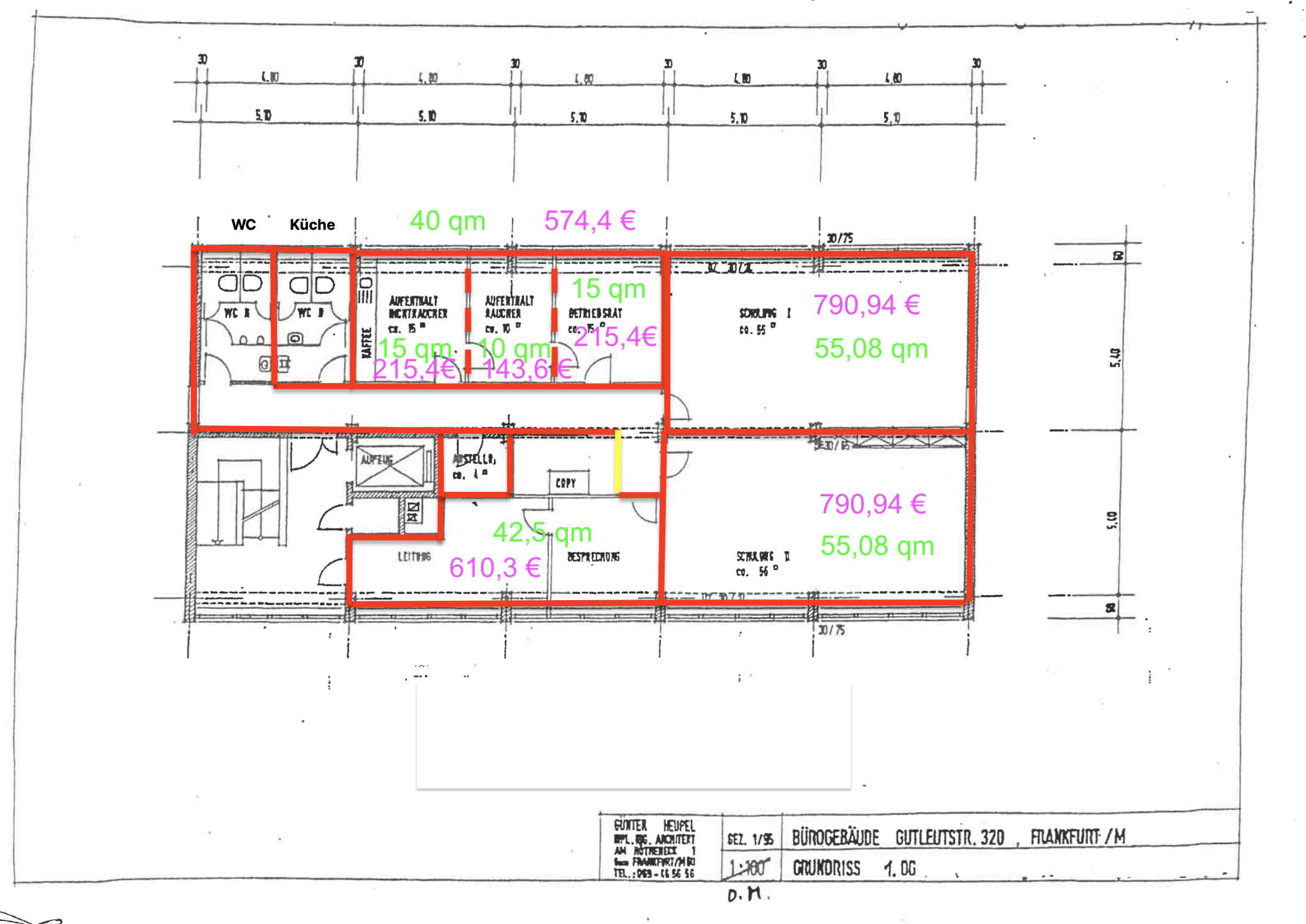
Bitte beachten: Die effektive Warmmmiete pro Raum inkl. Umlage der Gemeinschaftsflächen beläuft sich auf 14,36 Eur/qm (zzgl. 19% Mwst) vgl. Beispielrechnung im Grundriss oben.

Es handelt sich um Etagen die zuletzt als Büros u.a. von der Deutschen Bahn genutzt wurden und die sich insbsondere für umsatzsteuerpflichtige (Kleinst- und Klein-) Unternehmen aus der Kultur- und Kreativwirtschaft anbieten. Alle anderen sind auch willkommen, müssen aber zusätzlich die Umsatzsteuer berücksichtigen.

Der Zutritt erfolgt (nicht-barrierefrei) über eine 6-stufige Außentreppe ins Foyer im EG, von dem sich über das zentrale Treppenhaus und einen Aufzug die weiteren Etagen erschließen. Parkplätze sind rückwärtig vorhanden und können zusätzlich angemietet werden.

In der aktuellen Aufteilung haben die Räume eine Größe zwischen 10 und 55 qm und teilen sich einen schmalen Flur und zwei WCs.

Zur Renovierung, individuellen Nutzbarmachung und ggf. Veränderung des Grundrisses (Beispiel siehe oben) kann das "Frankfurter Programm zur Förderung des Umbaus leerstehender Räume" in Anspruch genommen werden. Hierzu beraten und begleiten wir alle nötigen Schritte. Antrag und Umsetzung der Baumaßnahme würde nach Mietvertragsabschluss und Absprache über den Eigentümer erfolgen.

KOSTEN:

  • 7,50 Eur/qm bzw. ab dem zweiten Jahr 8,50 Eur/qm (zzgl. 19% Mwst)

  • 4,00 Eur/qm (zzgl. 19% Mwst) Nebekosten inkl. Heizung

Bitte beachten: Die effektive Warmmmiete pro Raum inkl. Umlage der Gemeinschaftsflächen beläuft sich auf 14,36 Eur/qm (zzgl. 19% Mwst) vgl. Beispielrechnung im Grundriss oben.

Bei Interesse schreibt uns an die: raum@radar-frankfurt.de, dann laden wir Euch im Anchluss zu Besichtigungsterminen ein.

Der Grundriss zeigt Beispielhaft die mögliche Aufteilung im 1. OG.

WICHTIG:

Die Anmietung kann nur etagenweise über einen Hauptmieter erfolgen. Bei mehreren Mietparteien müssen sich diese zu einer Miet-GbR zusammenschließen oder es gibt eine:n Hauptmieter:in, der an die anderen untervermietet. Von daher richtet sich das Angebot einerseits an bestehende Büros, Agenturen oder Bürogemeinschaften, andererseits sind wir aber auch behilflich Einzelakteure bei der Gründung neuer Gemeinschaften zu unterstützen. Wir werden zeitnah Besichtigungstermine ankündigen, bei denen wir das weitere Vorgehen besprechen. Auch was die Fragen zur Umbauförderung und baulichen Nutzbarmachung der Räume angeht.

PS: Wir sehen das Gebäude im Kontext des Entwicklunsprozess „Produktives Quartier Gutleut-West“ und begleiten Mieter:innen auch in Zukunft.

Typ Räume
Fläche 230 m²
Mietpreis 2645 €
Stadteil Gutleutviertel
ÖPNV Bus 37
Verfügbar seit 02.10.2024